Description
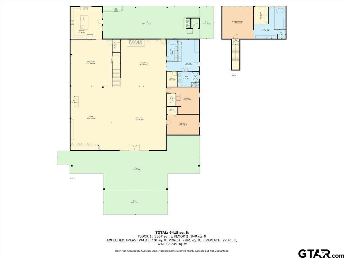
Luxury Barndominium on 127 Acres with Guest House, Horse Barn and Exceptional Hunting! Nestled on 127 acres, this exceptional luxury barndominium combines the best of country living with sophisticated, modern amenities. With 3 spacious bedrooms and 3 full bathrooms, this home is designed for both comfort and style, offering an open-concept floor plan with high-end finishes, soaring ceilings, and large windows that flood the space with natural light. Every detail, from the sleek kitchen with top-tier appliances to the spa-like bathroom, speaks to the quality and craftsmanship of this one-of-a-kind property. The heart of the home is its expansive living area, perfect for entertaining or relaxing, featuring a cozy fireplace and plenty of room for family gatherings. The gourmet kitchen is equipped with state-of-the-art appliances, a large island, and custom cabinetry, while the adjoining dining area is perfect for hosting guests. The master suite is located upstairs and is a true retreat, complete with a private en-suite bathroom and views of the stunning property. Step outside onto the covered porch and enjoy sweeping views of your wooded and open property, ideal for outdoor activities and enjoying nature's beauty. The property includes a full horse barn with ample space for your animals, as well as a 3 bedroom, 2 bathroom guest house for visiting friends or family. For those with hobbies or needs for extra storage, this property features an impressive collection of shops and storage spaces, perfect for anything from workshop projects to storing outdoor equipment. With excellent deer and duck hunting opportunities, it's a hunter's paradise, offering a mix of timberland and open fields ideal for wildlife. Whether you're looking for a peaceful retreat, a weekend getaway, a hunting haven, or a place to raise horses or cattle, this home has it all, combining the rustic charm of a country estate with the luxury and convenience of modern living.
-
3BEDS
-
126.76ACRES
-
3BATHS
-
01/2 BATHS
-
6,415SQFT
-
$444$/SQFT
School Information
Description
Luxury Barndominium on 127 Acres with Guest House, Horse Barn and Exceptional Hunting! Nestled on 127 acres, this exceptional luxury barndominium combines the best of country living with sophisticated, modern amenities. With 3 spacious bedrooms and 3 full bathrooms, this home is designed for both comfort and style, offering an open-concept floor plan with high-end finishes, soaring ceilings, and large windows that flood the space with natural light. Every detail, from the sleek kitchen with top-tier appliances to the spa-like bathroom, speaks to the quality and craftsmanship of this one-of-a-kind property. The heart of the home is its expansive living area, perfect for entertaining or relaxing, featuring a cozy fireplace and plenty of room for family gatherings. The gourmet kitchen is equipped with state-of-the-art appliances, a large island, and custom cabinetry, while the adjoining dining area is perfect for hosting guests. The master suite is located upstairs and is a true retreat, complete with a private en-suite bathroom and views of the stunning property. Step outside onto the covered porch and enjoy sweeping views of your wooded and open property, ideal for outdoor activities and enjoying nature's beauty. The property includes a full horse barn with ample space for your animals, as well as a 3 bedroom, 2 bathroom guest house for visiting friends or family. For those with hobbies or needs for extra storage, this property features an impressive collection of shops and storage spaces, perfect for anything from workshop projects to storing outdoor equipment. With excellent deer and duck hunting opportunities, it's a hunter's paradise, offering a mix of timberland and open fields ideal for wildlife. Whether you're looking for a peaceful retreat, a weekend getaway, a hunting haven, or a place to raise horses or cattle, this home has it all, combining the rustic charm of a country estate with the luxury and convenience of modern living.
The data relating to real estate for sale on this website comes in part from the Internet Data Exchange (IDX) of the Greater Tyler Association of REALTORS® Multiple Listing Service. The IDX logo indicates listings of other real estate firms that are identified in the detailed listing information. This information is deemed reliable, but not guaranteed. The information being provided is for consumers' personal, non-commercial use and may not be used for any purpose other than to identify prospective properties consumers may be interested in purchasing. Data last updated 2025-12-07T23:28:37.013.
Listing provided courtesy of Tony Richey of RE/MAX Tyler: . Listing information © 2025 Greater Tyler Association of REALTORS® Multiple Listing Service.